2023
rok realizace
550m2
užitná plocha
Nymburk
místo stavby
architektonická studie, dokumentace pro stavební povolení, prováděcí dokumentace
stupeň dokumentace

ostatní stavby
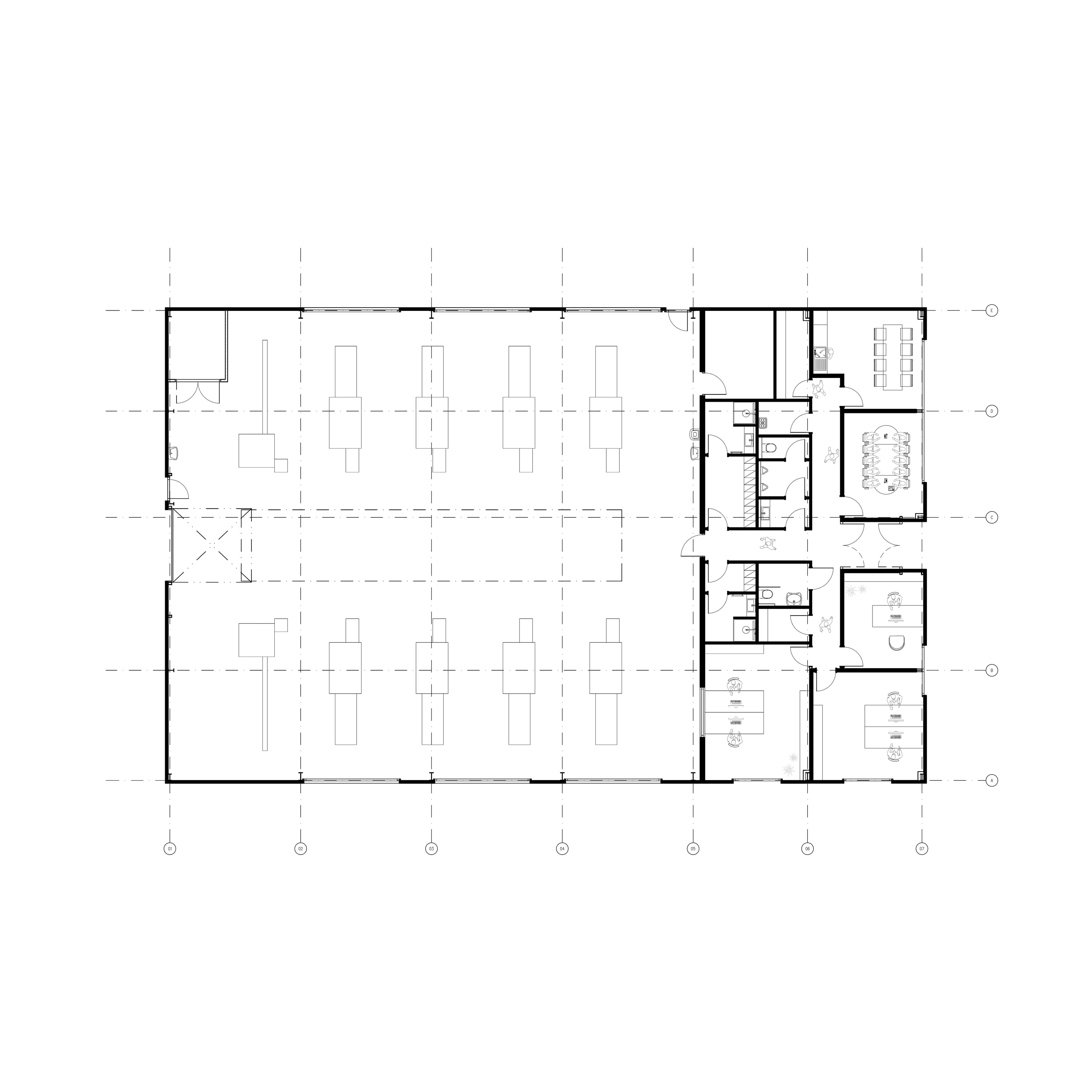
komplexní návrh průmyslového objektu propojuje výrobní, administrativní a provozní část do funkčního a vizuálně čistého celku.
2023
rok realizace
550m2
užitná plocha
Nymburk
místo stavby
architektonická studie, dokumentace pro stavební povolení, prováděcí dokumentace
stupeň dokumentace
výrobní hala je určena pro provoz CNC strojů, s důrazem na efektivní provozní logiku, bezpečnost a přirozené osvětlení. dispozice i architektonické řešení reflektují potřebu flexibility, provozní návaznosti i důraz na pracovní komfort a příjemné pracovní prostředí.
součástí objektu je sídlo firmy s reprezentativním vstupem, kancelářemi pro vedení i zaměstnance, moderní zasedací místností a kompletním zázemím – šatnami, kuchyňkou a hygienickými prostory.


